Oplontis, nuovi scavi
Anche la maschera del vecchio Pappus e slanciati altri pavoni tra gli affreschi che stanno emergendo dai nuovi scavi nella zona ovest della villa romana sotterrata dall’eruzione del Vesuvio del 79 d.C.
Presentati in anteprima ai possessori della Pompei My Card, l’abbonamento annuale ai siti archeologici del vesuviano, che ti consente anche di partecipare a visite guidate ai cantieri in corso nei siti del Parco Archeologico di Pompei, i nuovi scavi all’antica Oplontis sotterrata dall’eruzione del Vesuvio del 79. La famosa cosiddetta villa di Poppea sita nella odierna Torre Annunziata sta vivendo un cantiere di scavo e restauro da cui emergono nuovi scorci di raffinati affreschi, tra cui vivaci figure di pavoni e maschere nel celebre salone della Maschera e del Pavone, uno degli ambienti più
Tra le scoperte di particolare rilievo sono emersi una figura integra di una pavonessa, speculare all’esemplare maschio rinvenuto sulla porzione meridionale della stessa parete, e alcuni frammenti con la raffigurazione di una maschera scenica riconducibile a un personaggio della Commedia Atellana, a differenza di altri presenti nell’ambiente e attribuibili alla Tragedia. Si tratta di Pappus, un vecchio rimbambito che tenta di fare il giovane ma che finisce regolarmente per essere beffato e deriso. Di notevole interesse anche il rinvenimento di alcuni frammenti di affresco raffiguranti parte di un tripode dorato, inscritto in un oculus (cerchio), allo stesso modo della raffigurazione al centro di un’altra parete, dove invece è rappresentato un tripode in bronzo.
Grazie alla tecnica dei calchi, lo scavo ha anche restituito le impronte di alberi che ornavano il giardino, in posizione originale e inseriti in un preciso schema ornamentale, che raddoppiava il colonnato del porticato meridionale, richiamando schemi documentati nelle domus pompeiane e nello stesso sito di Oplontis. È possibile che le specie arboree presenti in questo ambiente fossero affini a quelle individuate dalle analisi archeobotaniche effettuate in passato negli ambienti adiacenti come ad esempio l’olivo.
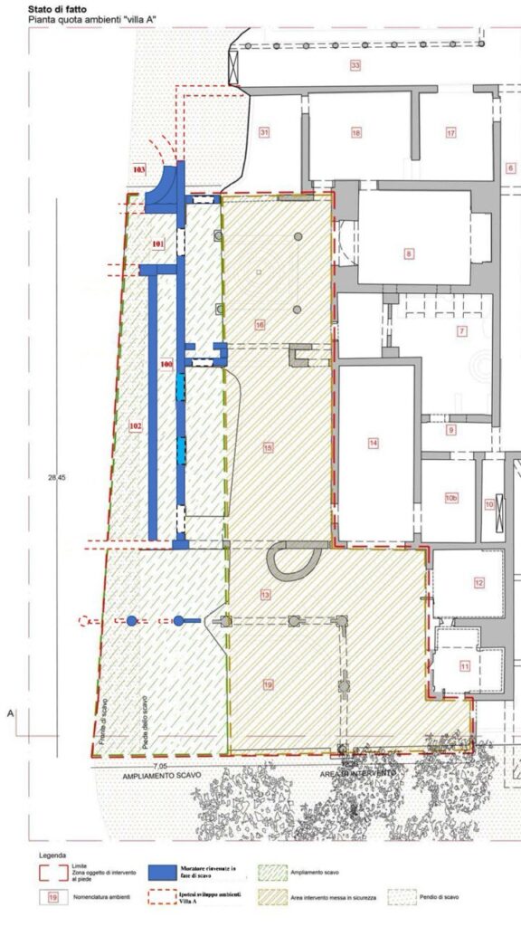
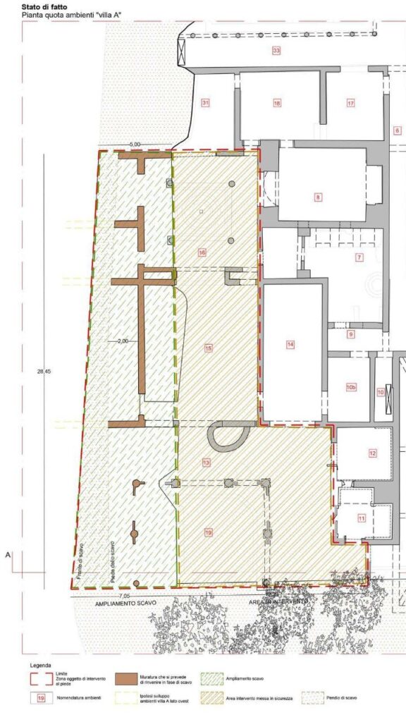
Lo scavo ha, inoltre, determinato l’individuazione di quattro nuovi ambienti che si aggiungono ai 99 già noti, tra cui un vano absidato che fa verosimilmente parte del settore termale. Interessante è il rilevamento di un paleoalveo, antico tratto di alveo di un torrente a carattere stagionale, che scorreva proprio in corrispondenza del tracciato di via dei Sepolcri, formatosi probabilmente dopo l’eruzione del 1631, che ha eroso parte dei depositi dell’eruzione del 79 d.C., offrendo una comprensione più chiara del paesaggio circostante.
“Questi primi risultati offrono nuove e promettenti prospettive di ricerca per la conoscenza della planimetria della villa – – aggiunge il Direttore – e per lo studio delle interazioni tra insediamento umano e ambiente naturale nel lungo periodo.”
In contemporanea all’intervento di scavo è in corso anche un cantiere di restauro degli apparati decoratividi due piccoli e preziosi ambienti, in origine destinati ad area di riposo, detti cubicola, che affacciano nell’area sud occidentale della Villa, proprio in prossimità dell’area dell’altro cantiere. Colpisce la loro ricca decorazione, costituita da stucchi, pareti affrescate, volte dipinte e mosaici pavimentali di straordinaria bellezza, che rivela, al pari degli altri ambienti della Villa, una capacità tecnica da parte degli esecutori dell’epoca molto alta, ed una palette di pigmenti varia, costituita anche dal blu egizio.
L’obiettivo dell’intervento è quello di recuperare la piena leggibilità della decorazione dipinta e dei mosaici, perduta nel tempo a causa dei processi di degrado dei materiali originali e dell’alterazione dei materiali utilizzati nei precedenti interventi di restauro.
L’intervento, dettato da necessità di chiarire aspetti relativi allo sviluppo del settore ovest della villa che costeggia il tratto urbano di via dei Sepolcri e risolvere criticità conservative. Lo scavo in corso consentirà di fatto di creare una connessione con il confinante Spolettificio Borbonico dove, nei prossimi anni, saranno realizzati spazi museali espositivi, depositi e servizi aggiuntivi.
I primi risultati delle indagini, tra cui il completamento dello scavo del salone, sono illustrati in un articolo dell’e-journal degli scavi di Pompei https://pompeiisites.org/e-journal-degli-scavi-di-pompei/,pubblicato.


























Share this content:



Commento all'articolo